PRIMEIRO DIREITO

arquitectos

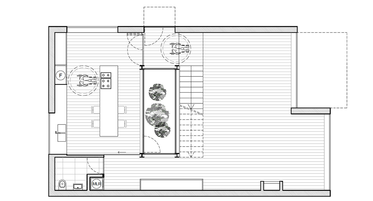
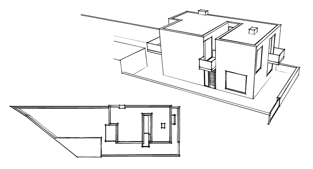
Moradia na Ribeira Grande, Açores

CASA RIBEIRA GRANDE

habitação unifamiliar

Ribeira Grande, Açores, Portugal
2017-2021
concluído
Moradia na Ribeira Grande, Açores
Área Bruta: 210,00 m2
Arquitectura: Arqº. Mário Lopes
Especialidades: Engº. Emanuel Correia / Strong Lines
Cliente: Susete Correia
Moradia na Ribeira Grande, Açores
Moradia na Ribeira Grande, Açores
Moradia na Ribeira Grande, Açores
Moradia na Ribeira Grande, Açores
Moradia na Ribeira Grande, Açores
Moradia na Ribeira Grande, Açores
Moradia na Ribeira Grande, Açores