Para além de estar inserida em Zona Classificada (Zona de Protecção dos Imóveis do Campo Mártires da Pátria / Campo Santana), as características do arruamento impunham um especial cuidado na abordagem de projecto, de forma a contribuir para a valorização arquitetónica, urbanística, patrimonial e ambiental da área e do conjunto edificado em que se integra, pretendendo-se que a edificação tenha uma linguagem contemporânea, assumindo a sua época de construção como parte da evolução do tecido urbano em diálogo com as construções existentes pela relação volumétrica, escala urbana, ritmos estabelecidos pela relação de “cheios/vazios” definida pela fenestração proposta e materiais de acabamento.
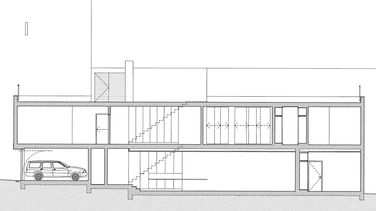
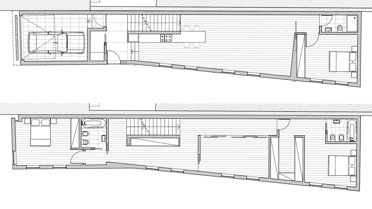
Desta forma, a edificação desenvolve-se num único volume, com dois pisos distinguidos visualmente pela utilização de cores e materiais de acabamento distintos:
Na fachada do piso térreo optou-se por betão arquitectónico colorido na cor “tijolo” por se tratar de um material pigmentado na sua massa, o que nos remete para os pigmentos tradicionais (neste caso o óxido de ferro) e confere à fachada a vibração da textura conferida pela cofragem em tabuado de “solho”, expondo o processo construtivo utilizado, e contrapondo-se à fachada do piso superior onde está previsto um reboco estanhado afagado á colher (pintado de branco) de forma a expor também o processo de acabamento.
Esta marcação dos pisos por volumes visualmente distintos tem como objectivo fraccionar a fachada dois planos numa escala que se entende ser a adequada à da envolvente.