PRIMEIRO DIREITO

arquitectos

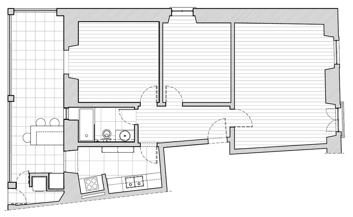
Remodelação de Apartamento em Lisboa

CIDADE DE CARDIFF 29

apartamento

Rua Cidade de Cardiff, Lisboa, Portugal
2021-2022
concluído
Remodelação de Apartamento em Lisboa
Remodelação de Apartamento em Lisboa
Área Bruta: 95,00 m2
Design de interiores: Melody Rae
Obra: PRIMEIRO DIREITO Unip. Lda / Nataliya Veselska Unipessoal Lda
Cliente: Çagatay Feyyaz Unal
Remodelação de Apartamento em Lisboa
Remodelação de Apartamento em Lisboa
Remodelação de Apartamento em Lisboa
Remodelação de Apartamento em Lisboa
Remodelação de Apartamento em Lisboa
Remodelação de Apartamento em Lisboa
Remodelação de Apartamento em Lisboa
Remodelação de Apartamento em Lisboa
Remodelação de Apartamento em Lisboa