PRIMEIRO DIREITO

arquitectos

Remodelação de Apartamento em Lisboa

FANQUEIROS 96

apartamento

Rua dos Fanqueiros, Lisboa, Portugal
2020-2021
concluído
Remodelação de Apartamento em Lisboa
Remodelação de Apartamento em Lisboa
Remodelação de Apartamento em Lisboa
Remodelação de Apartamento em Lisboa
Remodelação de Apartamento em Lisboa
Remodelação de Apartamento em Lisboa
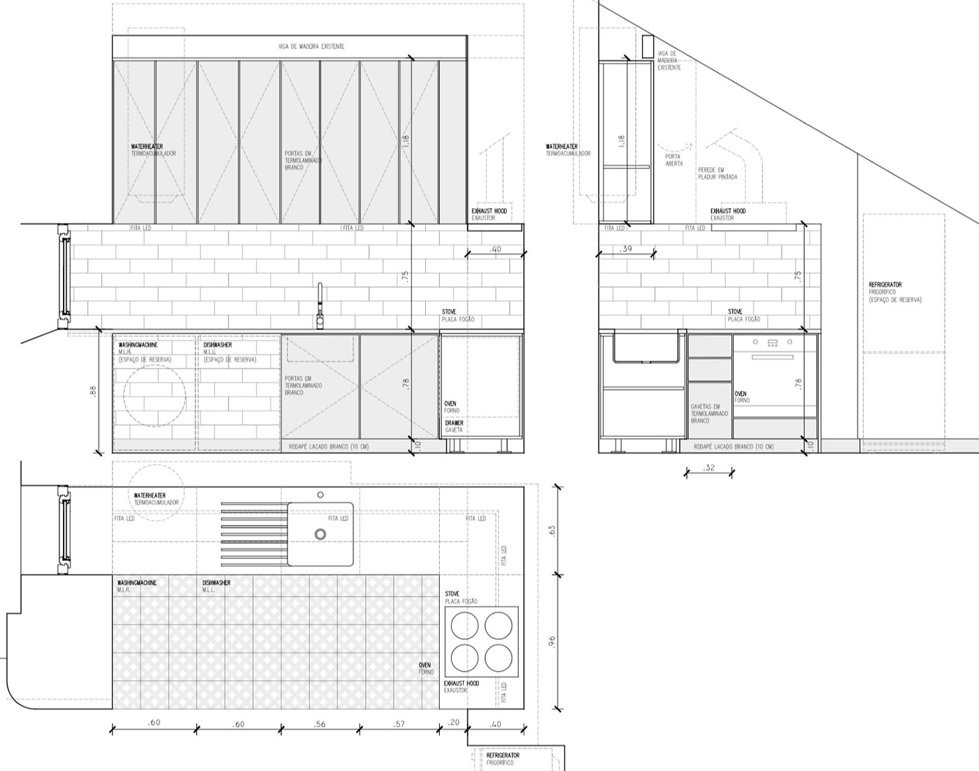
Remodelação de Apartamento na Rua dos Fanqueiros, em Lisboa
Área Bruta: 85,00 m2
Arquitectura: Arqª Sofia Bentinho / Arqº. Mário Lopes
Especialidades: Engº. Emanuel Correia / Strong Lines
Obra: PRIMEIRO DIREITO Unip. Lda / Nataliya Veselska Unipessoal Lda
Cliente: Yiu Bong Lin
Remodelação de Apartamento em Lisboa
Remodelação de Apartamento em Lisboa
Remodelação de Apartamento em Lisboa
Remodelação de Apartamento em Lisboa
Remodelação de Apartamento em Lisboa
Remodelação de Apartamento em Lisboa
Remodelação de Apartamento em Lisboa
Remodelação de Apartamento em Lisboa
obra de reabilitação de apartamento na Rua dos Fanqueiros, em Lisboa